Dettagli immobile
Cascina Pisa
€1.999/Descrizione
rif. 4482332
ufficio - Cascina Pisa
Siamo lieti di presentarvi una straordinaria opportunità per la locazione di un ufficio situato in una posizione strategica nel comune di Cascina. Questo immobile, al secondo piano di un fabbricato direzionale/commerciale recentemente costruito e ben curato, si affaccia sulla superstrada Firenze-Pisa, garantendo visibilità e accesso facile.
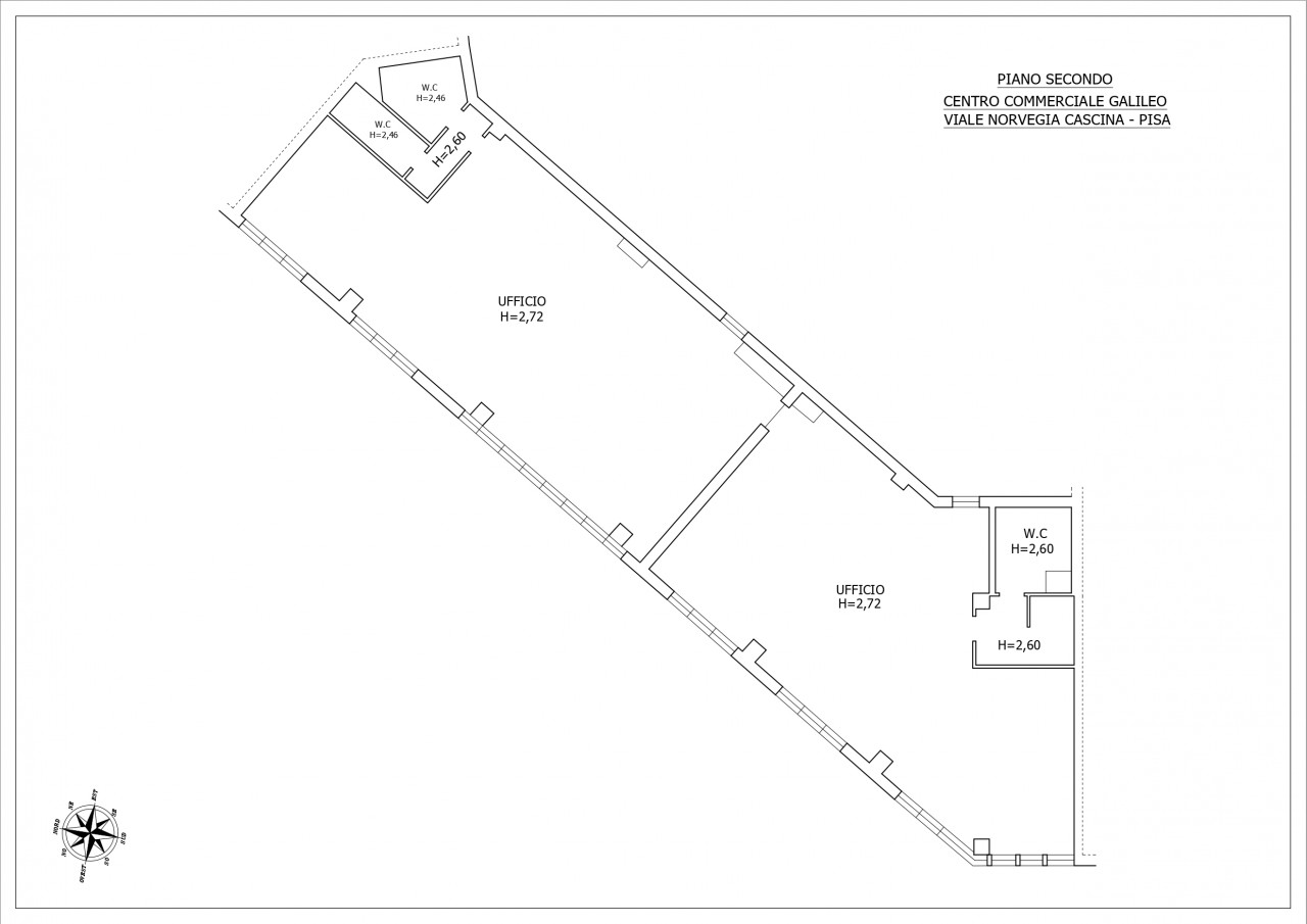
L’ufficio, ampio e luminoso con una superficie totale di 268 mq, è composto da due distinte unità open space collegate tramite una porta; questa caratteristica offre la flessibilità necessaria per adattarsi alle diverse esigenze lavorative dei vostri progetti. La disposizione interna consente molteplici configurazioni degli spazi rendendolo ideale sia per piccole imprese che per liberi professionisti. Completano l’unità quattro servizi igienici moderni e funzionali, garantendo comodità ed efficienza nelle pause lavoro quotidiane.
Cascina non è solo una scelta immobiliare vantaggiosa; le sue caratteristiche demografiche favorevoli rendono questa zona altamente competitiva dal punto di vista commerciale. Grazie alla vicinanza con importanti vie di comunicazione come il raccordo autostradale FI-PI-LI e altre arterie principali nella regione Toscana, questo ufficio gode dell’accessibilità ai principali servizi commerciali della zona: vari ristoranti gourmet, negozi locali rinomati e strutture pubbliche sono facilmente raggiungibili.
Inoltre, il contesto elegante del fabbricato condominiale aggiunge valore all’immagine aziendale dei potenziali acquirenti; ciò rende lo spazio non solo pratico ma anche esteticamente gradevole poiché presenta finiture moderne che riflettono professionalità ed eleganza.
per la formalizzazione del contratto di locazione, viene richiesta fidejussione bancaria
Non perdete l’opportunità di investire in questo versatile spazio lavorativo! Per ulteriori informazioni o per fissare una visita guidata vi invitiamo a contattarci al numero 331.1848362.
Caratteristiche immobile
- ufficio
- 4 bagno















